Unternehmen der Region
Allianz Agentur Tutzing
Generalvertretung Christian Riegel - Dein Allianz Team vor Ort
Alle Unternehmen anzeigenWas passiert gerade vor Ort? Bauplanung
Bauplanung
Wasserwacht bleibt bei Erweiterungsplan
Sieben Bebauungspläne der Gemeinde Tutzing vor dem Ende
Mehr als 100 Bebauungspläne hat die Gemeinde Tutzing bisher aufgestellt. Etliche von ihnen sind noch nicht abgeschlossen. Die Verfahren sind langwierig, mit großem Arbeitsaufwand und
1
Mehr als 100 Bebauungspläne hat die Gemeinde Tutzing bisher aufgestellt. Etliche von ihnen sind noch nicht abgeschlossen. Die Verfahren sind langwierig, mit großem Arbeitsaufwand und
Bauplanung
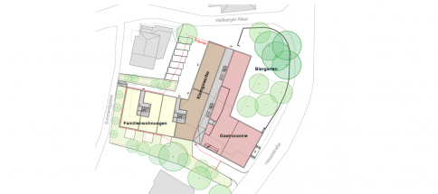
Baupläne im Tutzinger Bahnhofsviertel
Antrag für ein Mehrfamilienhaus neben dem ehemaligen Postamt – HeiVo-Vertrag unterzeichnet
om eigentlich geplanten Verkauf des Tutzinger Bahnhofsgebäudes ist die Deutsche Bahn zwar wieder abgekommen. Doch der Charakter des Bahnhofsumfe
0
om eigentlich geplanten Verkauf des Tutzinger Bahnhofsgebäudes ist die Deutsche Bahn zwar wieder abgekommen. Doch der Charakter des Bahnhofsumfe
Bauplanung
Umstrittene Wege zur neuen Wohnanlage
Unterschiedliche Interpretationen eines Gemeinderatsbeschlusses zum Thema Schönmoos
Die Grundstücke des Verbands Wohnen im Tutzinger Schönmoos bleiben bisher weiter leer. Die alten Wohnblöcke dort sind schon 2023 abgebrochen worden, eine n
8
Die Grundstücke des Verbands Wohnen im Tutzinger Schönmoos bleiben bisher weiter leer. Die alten Wohnblöcke dort sind schon 2023 abgebrochen worden, eine n
Bauplanung
Plädoyer für Neuausrichtung im Schönmoos
Grüne beantragen Kooperation von Verband Wohnen, Gemeinde und einer bürgergetragenen Genossenschaft
Die Tutzinger Gemeinderatsfraktion von Bündnis 90 / Die Grünen setzt sich für eine enge Kooperation zwischen Verband Wohnen, der Gemeinde
11
Die Tutzinger Gemeinderatsfraktion von Bündnis 90 / Die Grünen setzt sich für eine enge Kooperation zwischen Verband Wohnen, der Gemeinde
Bauplanung
Der Geist, der einen Campingplatz verneint
Im Tutzinger Bauausschuss gab es zu einer Anfrage für Obertraubing nur negative Stellungnahmen
¼r einen Campingplatz in Tutzing würden ihm sehr wohl auch „Pluspunkte“ einfallen, meint Kommentator Bernhard Rekus auf vorOrt.news. https://
13
¼r einen Campingplatz in Tutzing würden ihm sehr wohl auch „Pluspunkte“ einfallen, meint Kommentator Bernhard Rekus auf vorOrt.news. https://
Bauplanung
Tutzing gibt Wohnanlage Schönmoos nicht auf
Bebauungsplan-Verfahren wird trotz unklarer Finanzierung fortgesetzt
Die früheren Wohnblöcke an der Niederebersdorfer Straße und der Sudetendeutschen Straße sind längst abgerissen, die Grundstücke am Schönmoos in Tutzing sind leer. Der für
1
Die früheren Wohnblöcke an der Niederebersdorfer Straße und der Sudetendeutschen Straße sind längst abgerissen, die Grundstücke am Schönmoos in Tutzing sind leer. Der für